4.364.500 €
Precio a consultar
En pleno corazón de Recoletos y a escasos metros de la Puerta de Alcalá, se encuentra esta joya arquitectónica de 1934, situada en la planta principal de una de las fincas más señoriales de la zona. Una propiedad extraordinaria por su elegancia clásica, su amplitud y su potencial de transformación en una vivienda verdaderamente singular.
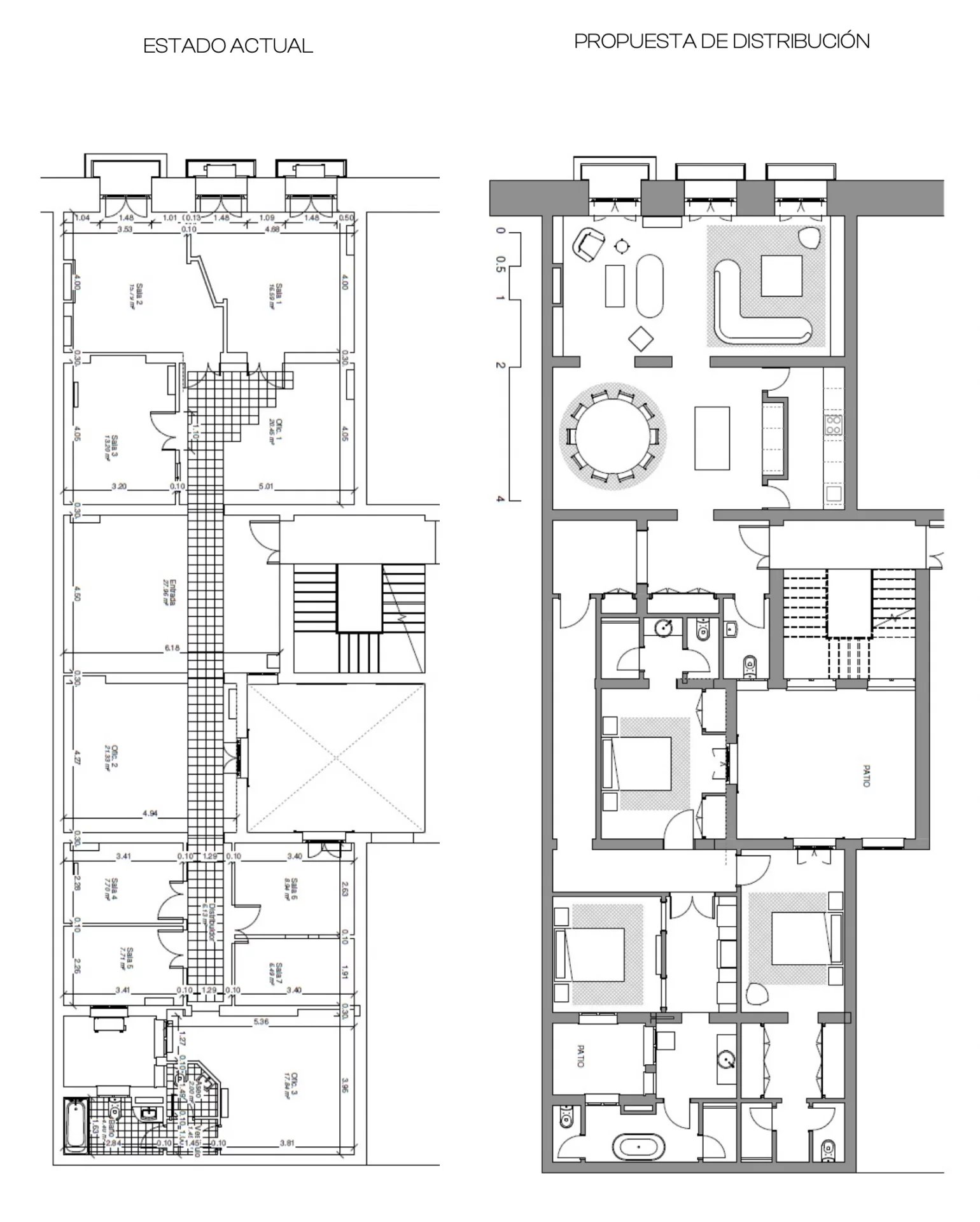
Con 266 m² y tres balcones orientados al sur, disfruta de una luminosidad excepcional y de vistas directas a la Parroquia de San Manuel y San Benito, uno de los templos más emblemáticos del distrito.
Actualmente distribuida en 3 dormitorios y 4 baños, su planta diáfana permite configurar fácilmente 3 o 4 dormitorios según las necesidades, creando un hogar a medida con una identidad propia dentro del barrio más cotizado de Madrid.
La finca conserva elementos originales de alto valor patrimonial, como el ascensor de jaula, portería física, trastero y una terraza comunitaria con vistas panorámicas, un privilegio poco común en este enclave.
Una oportunidad única para quienes buscan una vivienda de época, con carácter y un proyecto de reforma capaz de elevar esta propiedad histórica a los más altos estándares de diseño contemporáneo.
En Driven Properties, redefinimos el concepto de lujo con una exclusiva selección de propiedades en las zonas más prestigiosas del mundo. Desde impresionantes villas frente al mar hasta elegantes casas en los edificios más representativos de las principales ciudades.
Si buscas el hogar de tus sueños o una inversión segura, en Driven Properties, como expertos en el mercado inmobiliario de lujo, te ayudaremos a encontrar las mejores oportunidades y ese lugar donde tu vida se eleva.
Síguenos y déjate llevar por lo extraordinario.
